
Mantener un espacio de expansión adecuado es crucial cuando se instalan pisos para asegurar el movimiento del muro cortina. Las Industrias REXI ofrecen sugerencias profesionales sobre cómo calcular el espacio.
De acuerdo con el código nacional de fachada de muro cortina, el sistema de fachada de muro cortina debe tener cierta capacidad de movimiento. Por lo tanto, la brecha de expansión es necesaria para establecer entre dos pisos que puedan garantizar el movimiento apropiado del muro cortina. La brecha de expansión se ajustará a los requisitos de movimiento. El primero es la deformación de la temperatura del parteluz. El segundo es el error de construcción durante la instalación del proyecto. El tercero es la deformación por compresión axial cuando el muro cortina soporta la carga vertical.
En resumen, la empresa REXI Industry sugiere la siguiente fórmula de cálculo para calcular la junta de expansión de acuerdo con el código nacional de China.

α ------ coeficiente de expansión lineal para parteluz;
△ T ----- valor de cambio de temperatura anual;
L ------- lapso de parteluz;
a1 ----- error de construcción durante la instalación, el valor es de 3 mm;
a2 ------ deformación axial del montante, el valor es de 2 mm;
Además, la brecha de expansión no debe ser inferior a 15 mm, de acuerdo con el código técnico del muro cortina nacional de China.
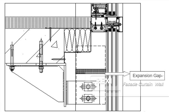
La unión de esta expansión se conecta mediante un inserto fabricado en China por la fábrica REXI, por lo que el montante superior puede transferir la fuerza de corte al montante inferior.

La brecha de expansión
Etiqueta: Brecha de expansión de parteluz en muro cortina, China, proveedores, fabricantes, fábrica, precio





